Hudson's Timber
Compact Flip Top Workbench for Table Saw, Miter and Planer
Compact Flip Top Workbench for Table Saw, Miter and Planer
Couldn't load pickup availability
Digital Download PDF Build Plans for mobile workbench built for Table Saw with built in out feed table, flip top for a miter saw and flip up mount for a planer. Includes detailed PDF plans, Cut lists for all materials, shopping list with links to products and pricing.
Provides easy access to use all 3 tools, while keeping a compact form factor to minimize space when not in use. Perfect for small shops, 1 car garage shops or sheds. Was designed and is used in an 8x12 shed.
Cost to build estimated at $274.51 using box store pricing as of Feb 2024.
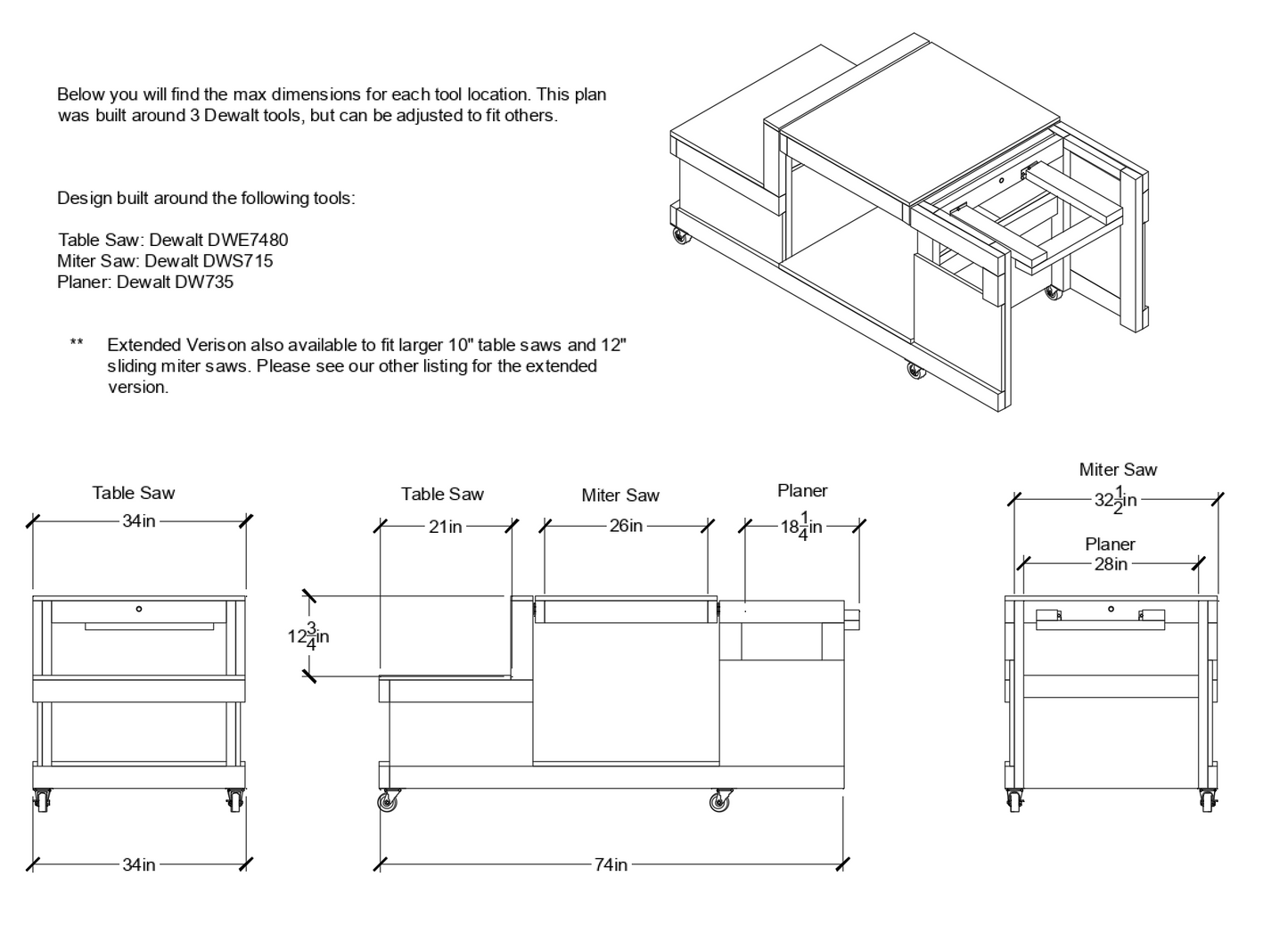
Overall Dimensions: 76-1/2"L x 34"W x 34.25"H (including 3.5" wheels)
Workbench is modeled for:
Table Saw: Dewalt DWE7480
Miter Saw: Dewalt DWS715
Planer: Dewalt DW735
Can be modified to fit additional tools and brands (includes instructions on how to modify), including:
Dewalt DWE7491 or DWE7485 Table Saws
Dewalt DWS782 Miter Saw
Dewalt DW734
Max tool footprint without modifications:
Table Saw: 21" deep x 34" wide
Miter Saw: 22.5" deep x 26" wide
Planer: 18.25" deep x 28" wide
Tools Needed:
Table Saw
Miter Saw or Skill Saw
Jig Saw (used for notching 1pc of plywood, could use hand saw)
Tape Measure
Drill
Drill bit set
Phillips Screw driver
Adjustable wrench or wrench set
Countersink bit
8’ straight edge or chalk box for plywood cuts. If you don't have one, then choosethe straightest 2x4x8 and use it to mark plywood cuts first. 2nd option would be to use the edgeof the second sheet of plywood.
This is an instant download. Please check for an email, with a link to download, after your purchase.
Terms of use:
Digital Products, including any support documents are for personal use only and cannot be shared or sold. You agree not to copy, reproduce, redistribute, alter, modify, share with third parties, display the content publicly, or create derivative works of Digital Products. You may create Physical Products using any Templates included in Digital Products for business use without attribution to Hudson's Timber LLC.
Please feel free to message me, if you have any questions.
Share











Outstanding plans. Chris is great to work with, helped me make an adjustment and got me what i needed immediately. Great compamy, reliable!