Hudson's Timber
Compact Flip Top Workbench Plans - 2x6ft For Table & Miter Saw
Compact Flip Top Workbench Plans - 2x6ft For Table & Miter Saw
Couldn't load pickup availability
Compact Mobile Flip Top Miter Saw Workbench Plans built for Table Saw with built in out feed table, flip top miter saw and Shelves for small parts bin storage. Includes detailed PDF plans, Cut lists for all materials, shopping list with links to products and pricing.
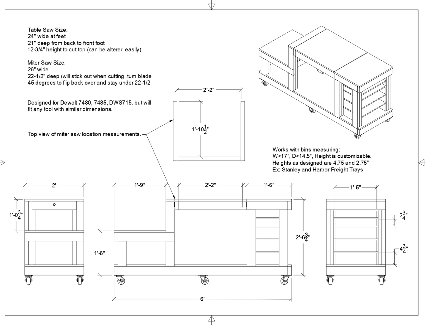
This is the Compact version of the design to fit smaller footprint 8-1/4 & 10" table saws and 10" / 12" non-sliding miter saws. Other versions are available in shop that have placement for a planer and/or larger tools.
Provides easy access to use both tools, while keeping a compact form factor to minimize space when not in use. Perfect for small shops, 1 car garage shops or sheds.
Cost to build estimated at $212.80 using box store pricing as of April 2024.
Overall Dimensions: 72" L x 24" W x 34.25"H (including 3.5" wheels)
Workbench is modeled for:
Table Saw: Max Width at feet = 24" / Max depth from back of cut deck to front foot = 21"
Miter Saw: Max Width = 26" / Max depth stored at 45° = 22-1/2" (will stick out from front when cutting)
Storage Bins: Max Width = 17" / Max Depth = 14-1/2" / Height as designed is 4-3/4 & 2-3/4"
Example models known to work:
Table Saw = Dewalt 7480 & 7485
Miter Saw = Dewalt 715
Storage Bins = A variety from Stanley, Dewalt, Harbor Freight etc. Check max width / depth
Tools Needed:
Table Saw
Miter Saw or Skill Saw
Jig Saw
Tape Measure
Drill
Drill bit set
Phillips Screw driver
Adjustable wrench or wrench set
Countersink bit
8’ straight edge or chalk box for plywood cuts. If you don't have one, then choosethe straightest 2x4x8 and use it to mark plywood cuts first. 2nd option would be to use the edgeof the second sheet of plywood.
This is an instant download. Please check for an email from Etsy, with a link to download, after your purchase.
Hudson's Timber LLC has no affiliation with Home Depot, Dewalt, Lowe's, Sam's Club or Walmart
Terms of use:
Digital Products, including any support documents are for personal use only and cannot be shared or sold. You agree not to copy, reproduce, redistribute, alter, modify, share with third parties, display the content publicly, or create derivative works of Digital Products. You may create Physical Products using any Templates included in Digital Products for business use without attribution to Hudson's Timber LLC.
Please feel free to message me, if you have any questions.
Share





