Hudson's Timber
Flip Top Workbench Plans - Extended 3 Tool Version
Flip Top Workbench Plans - Extended 3 Tool Version
Couldn't load pickup availability
Flip Top Miter Saw Workbench Plans built for Table Saw with built in out feed table, flip top miter saw and flip up mount for a planer. Includes detailed PDF plans, Cut lists for all materials, shopping list with links to products and pricing.
This is the extended version of the design to fit larger 10" table saws and 12" sliding miter saws. A more compact flip top workbench is also available.
Provides easy access to use all 3 tools, while keeping a compact form factor to minimize space when not in use. Perfect for small shops, 1 car garage shops or sheds.
Cost to build estimated at $350.40 using box store pricing as of April 2024.
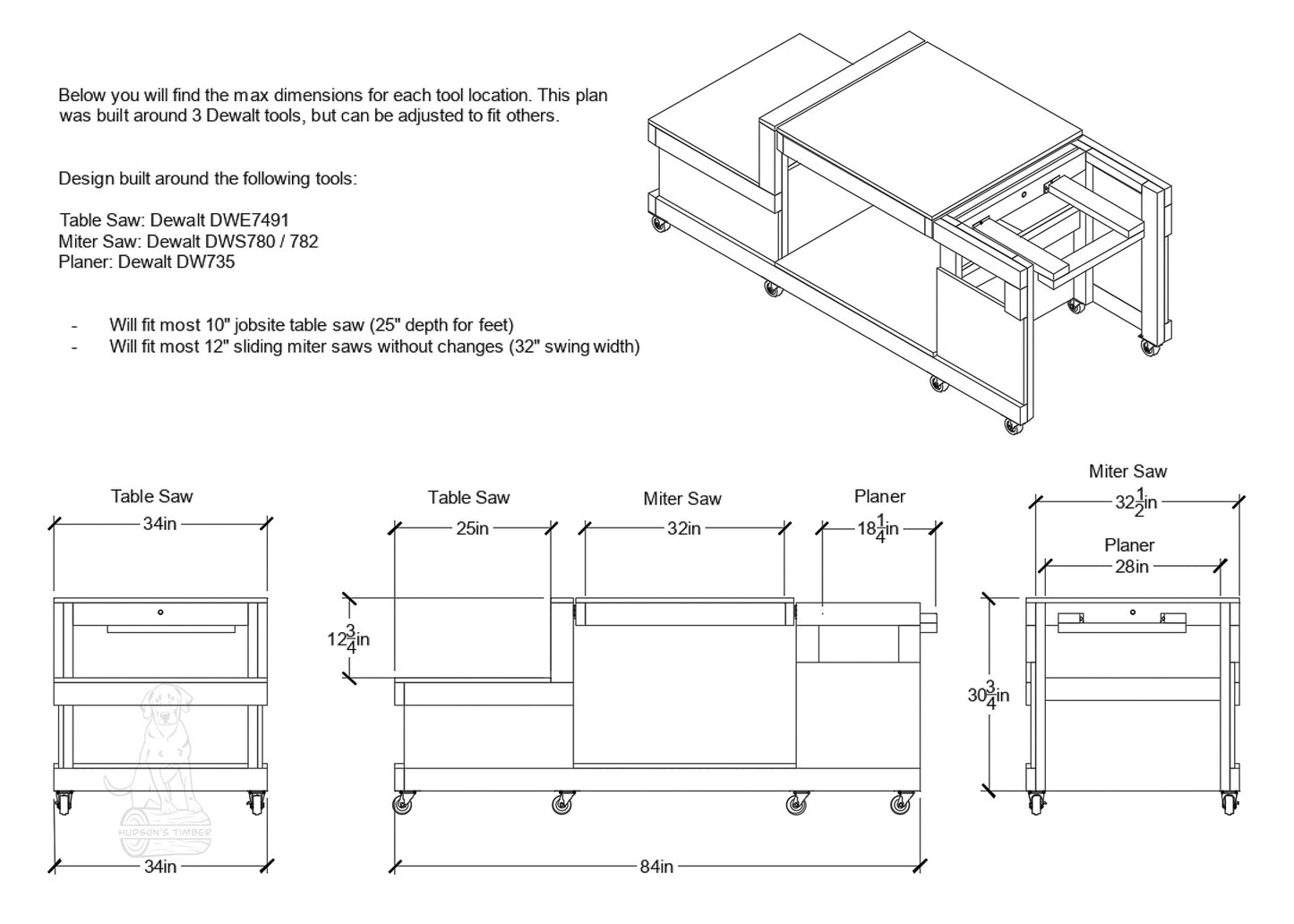
Overall Dimensions: 84" L x 34" W x 34.25"H (including 3.5" wheels)
Workbench is modeled for:
Table Saw: Dewalt DWE7491
Miter Saw: Dewalt DWS780 / DWS782
Planer: Dewalt DW735
Can be modified to fit additional tools and brands (includes instructions on how to modify)
Fits 10" Table Saws with a depth of 25" from back most point to front foot. (Can be extended easily)
Fits 12" Miter Saws with a max width of 32"
Fits Planers less than 28" wide
Max tool footprint without modifications:
Table Saw: 25" deep x 34" wide
Miter Saw: 22.5" deep x 32" wide
Planer: 18.25" deep x 28" wide
Tools Needed:
Table Saw
Miter Saw or Skill Saw
Jig Saw (used for notching 1pc of plywood, could use hand saw)
Tape Measure
Drill
Drill bit set
Phillips Screw driver
Adjustable wrench or wrench set
Countersink bit
8’ straight edge or chalk box for plywood cuts. If you don't have one, then choosethe straightest 2x4x8 and use it to mark plywood cuts first. 2nd option would be to use the edgeof the second sheet of plywood.
This is an instant download. Please check for an email, with a link to download, after your purchase.
Hudson's Timber LLC has no affiliation with Home Depot, Dewalt, Lowe's, Sam's Club or Walmart
Terms of use:
Digital Products, including any support documents are for personal use only and cannot be shared or sold. You agree not to copy, reproduce, redistribute, alter, modify, share with third parties, display the content publicly, or create derivative works of Digital Products. You may create Physical Products using any Templates included in Digital Products for business use without attribution to Hudson's Timber LLC.
Please feel free to message me, if you have any questions.
Share









Great plans! Took me a couple of days because of other things going on. I have it in a tandem 3 car garage. I’m not having to lug everything out now for a single cut. Very convenient with a good amount of table space.
I needed a quick build for my miter and table saw and these plans were perfect and easy to follow. I did not build out the entire planer section (because I don’t have one yet) but found the space if perfect for my shop vac. Easily built in a few hours, simple plans to follow.